The Arion
Tiny House with roof top deck!
Base Price - $56,150
- Exterior siding: Board and Batt or V-Groove
- Interior walls: Pine tongue and groove, bead board or finish plywood
- 2/12 pitch roof throughout with standing seam metal roofing
- 30”x 80” 6 panel fiberglass entry door
- All windows to be double pane slider and single hung with screens
- Blow in fiberglass insulation: R15 walls and Ceiling, R13 floor
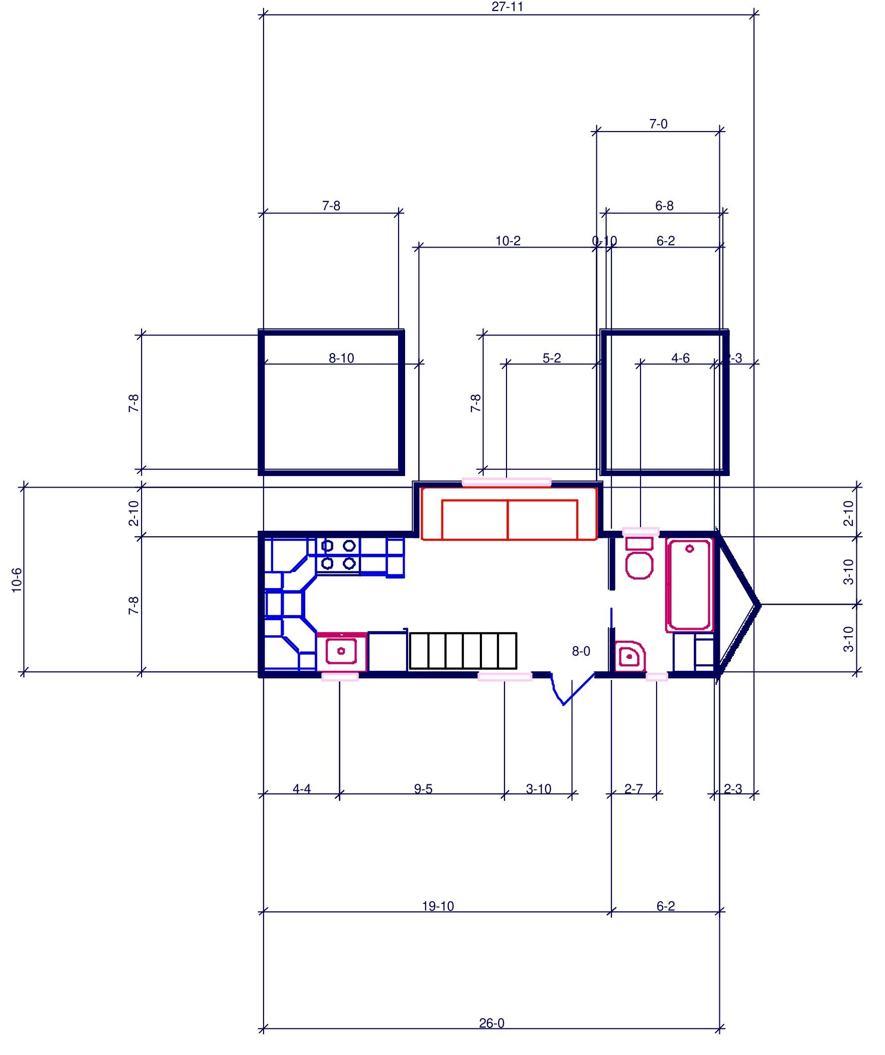
- 9 ft main loft above kitchen
- 7 ft second loft above bathroom
- 10 ft living area slide-out
- Front bathroom with 60” shower/tub combo (no door), residential toilet and small sink with cabinet and mirrored medicine cabinet above
- 8’ rear kitchen; 24” stainless-steel drop-in sink, pull out faucet, 21” drop in range with 3 burner cooktop, 24” rangehood (vented)
- Wilsonart laminate countertop and backsplash
- All kitchen cabinets in-stock cabinets from Home Depot or Lowes
- 6’ base pine stairs to main loft (custom built and as close to code as possible)
- Custom built pine ladder to secondary loft
- 30 AMP RV connection and 30 AMP RV power panel
- Propane RV 6-gallon water heater with access door on outside
- 3” RV twist drain connection, hose water connection, plumbing pipe will be pex with fittings