Exterior dimensions of 35' long by 8'6" total width that includes roof overhang and total height of 13' tall which includes the trailer of 2' from the ground.
Arched barrel framed flat Metal roof, color of choice, overhangs house walls by 2 inch on both sides, and a custom-built metal nose cone in very front roof of trailer.
Insulation is blow in fiberglass and as follows R-13 floor, R-15 walls, and R-15 ceiling (r values are an estimate)
Board and Bat smart soffit siding or V-Groove (Painted to color of customer choice). Color sample or color match number required from customer
All interior walls and ceiling to be pine tongue and groove with clear coat or painted plywood with seams every 4’(color chosen by the customer).
Windows are white and will have a 3-1/2” trim around windows that color will be chosen by customer.
Rear fold-down ramp door.
Floor is to be one piece vinyl from congoleum
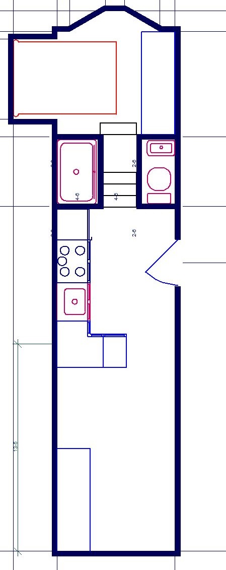
Front living room/ bedroom with 1 six-foot slide outs, and 12” deep built in storage cabinet in nose of the trailer. Lighting will be 4 sconce lights
Mid bathroom with a 3” toilet drain, ½” toilet water connection, outlet for future composting toilet (composting toilet not provided), regular porcelain toilet and a 36” one-piece shower (no door). Satin Nickel Two-Handle Tub and Shower Faucet, small sink/cabinet and a mirrored medicine cabinet
Mid kitchen with a 24” deep Stainless single basin sink, satin nickel pullout faucet, a Danby 4 burner propane range; a 9.2 cu.ft. Danby fridge
Laminate countertop
Kitchen will have 1 track light
All kitchen cabinets to be Home Depot Hampton Bay or Lowe’s in stock, pre-assembled base and upper cabinets.
Rear 12- volt bed and couch lift system in the living area
In wall electric heater
50 amp rv connection and 50 amp rv 12volt panel, all electrical devices to be white.
2 exterior lights and 1 exterior GFI
3" rv twist drain connection, hose water connection plumbing pipe will be Pex with chrome handles and fittings.
Propane 6-gallon propane tanked water heater mounted under kitchen sink with access door on outside wall.