- New Custom made trailer designed for the weight distribution of your build
- 8'6" total width including roof overhang and total height of 13'5" tall including 2' trailer height.
- Smartboard board and batt siding
- Your choice of pine tongue and groove or white bead board interior walls and ceiling
- Insulation is blow in fiberglass and as follows R13 floor, R15 walls, and R15 ceiling insulation. (R factors are a rough estimate)
- One sheet Congoleum vinyl floor
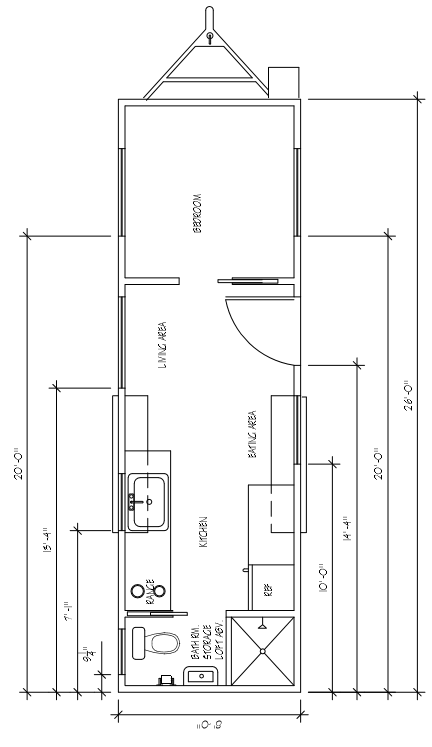
- 3’ Rear bathroom with regular porcelain toilet, small bathroom sink, 362” one-piece shower (no shower door)
- Propane 6 gallon hot water heater
- Electric base board heater
- Danby propane 4 burner range
- Stainless steel single basin kitchen sink with a pullout faucet
- 9.2 cu.ft. Danby fridge
- All kitchen cabinets to be Home Depot/Lowes pre assembled in stock (call for other options)
- Laminate counter top